


Plot for sale
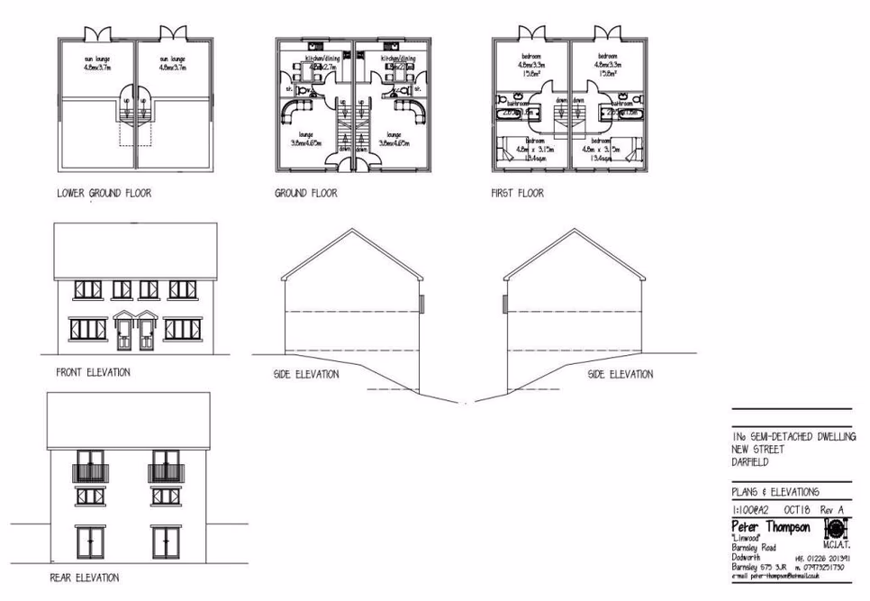
BUILDING LAND FOR SALE! Hunters are proud to present to the market this development land which has passed planning permission for two, two bedroom, three story semi detached properties located in Darfield, Barnsley. Darfield is a village within the Metropolitan Borough of Barnsley, South Yorkshir...
Plot for sale
Description
BUILDING LAND FOR SALE! Hunters are proud to present to the market this development land which has passed planning permission for two, two bedroom, three story semi detached properties located in Darfield, Barnsley. Darfield is a village within the Metropolitan Borough of Barnsley, South Yorkshir...
Contact Agent
Smart Picks — Professionals Relevant to This Land
Based on this property's key features, here are the specialists you may want to consult as part of your due diligence: land agents, rural solicitors, planning consultants and rics surveyors.

Land Agents
Essential for navigating the land market, finding buyers, and securing the best price.

Rural Solicitors
Significant investment (£110K+) requires legal expertise for conveyancing, title checks, and transaction security.

Planning Consultants
Planning-sensitive site needs expert guidance for applications and development strategy.

RICS Surveyors
Prime or productive land requires professional valuation to ensure fair market value.
Location
Snape Hill Road